HINTERSEE/SALZKAMMERGUT – EIN ZUHAUSE FÜRS LEBEN: 3-Zi-Gartenwohnung in Holzbauweise zu Salzburgs günstigstem Neubaupreis + WBF
Ruhiges Wohnen im Grünen:
In Hintersee entsteht etwas Besonderes! Das Objekt ist bereits baugenehmigt!
Inmitten der Salzburger Bergwelt, im idyllischen Ortsteil Oberasch nahe dem Hintersee, entsteht ein modernes Wohnprojekt mit 13 Einheiten in ökologischer Holzriegelbauweise, durchdacht geplant für Menschen, die naturnah und zukunftsorientiert wohnen möchten.
Die Anlage wurde in Form eines traditionellen 3-Seit-Hofs konzipiert und überzeugt mit intelligenten Grundrissen, großzügigen Freibereichen und einem nachhaltigen Energiekonzept. Luftwärmepumpe und Photovoltaik garantieren niedrige Betriebskosten und einen umweltschonenden Lebensstil – ideal für alle, die auf Dauer sparen und dabei auf Komfort nicht verzichten wollen.
Gestaltungsfreiheit statt Standardlösung:
Jede Wohnung wird im Edelrohbau übergeben – das bedeutet: Alle Anschlüsse, Feininstallationen, Lichtschalter sowie außenliegender Sonnenschutz sind bereits umgesetzt. Innen haben Sie freie Hand: Ob Böden, Fliesen, Türen oder Wandgestaltung – alles darf nach den eigenen Wünschen ausgewählt und umgesetzt werden. Maler- und Spachtelarbeiten sind ebenfalls in Eigenregie möglich. Wer lieber alles aus einer Hand fertiggestellt haben möchte, kann optional eine Standardausführung dazubuchen – samt weißen Innentüren, Parkett, klassischer Sanitärausstattung und Fliesen – gegen einen Aufpreis von ca. € 22.000,00 bis € 25.000,00 inkl. USt.
Die Fakten auf einen Blick:
-
13 Wohnungen auf drei Ebenen:
-
Erdgeschoss: Vier 3-Zimmer-Wohnungen mit Garten (Wohnfläche ca. 72,50m²) + (Gartenfläche ca. 100m²) – jeweils € 314.000,00
-
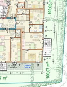
ERDGESCHOSS – Top E2: 3-Zimmer-Wohnung: Über den Hauseingang gelangt man zum Wohnungseingang und betritt den geräumigen Vorraum, der die Wohnung in 2 Bereiche teilt: Zur rechten geht es in den Wohnbereich mit offener Küche und Ausgang in den schönen Garten. Hier genießt man ein herrliches Frühstück oder entspannt abends bei einem Glas Wein. Gleich neben dem Wohnraum befindet sich ein großzügiges Schlafzimmer – ebenso mit Ausgang in den schönen Garten. Links vom Wohnungseingang befindet sich die begehbare Garderobe mit angeschlossener Gästetoilette und gleich nebenan ein schönes Zimmer (Kinder-/Gäste-Zimmer oder Home-Office) sowie das Bad mit Wanne und Waschbecken. Ergänzt wird das Raumangebot durch einen Kellerraum mit ca. 8-10m2. Vor dem Haus parkt man bequem auf zwei zur Wohnung zugehörigen Parkplätzen (zzgl. € 25.000,- inkl. Ust.).
-
-
Wohnflächen: ca. 72,50 m²
-
Garten: ca. 100 m²
-
Jede Einheit mit eigenem Kellerabteil (ca. 8–10 m²)
-
Zwei PKW-Stellplätze pro Wohnung vorgesehen – Aufpreis je. € 12.500,- inkl. Ust.
-
Alternativ Carport-Stellplatz: € 15.000,- inkl. Ust – je nach Verfügbarkeit.
-
Personenlift im Haus
-
Eigene Fahrradabstellplätze direkt beim Gebäude
Wohnen mit Aussicht:
Von Ihrem sonnigen Balkon oder Ihrer Terrasse genießen Sie einen unverbaubaren Blick in die umliegende Naturlandschaft. Ob Bergblick beim Frühstück oder laue Sommerabende im eigenen Garten, hier wird der Alltag zur Auszeit.
Lebensqualität, die bleibt:
Die ruhige Lage mitten im Grünen garantiert Erholung, während die Nähe zum Hintersee (fußläufig erreichbar) sowie die Freizeitangebote der Osterhorngruppe ein aktives Leben zu jeder Jahreszeit ermöglichen: Wandern, Skifahren, Rodeln, Tourengehen oder einfach nur die Natur genießenalles liegt direkt vor Ihrer Haustür.
Infrastruktur & Anbindung:
Kindergarten in Hintersee, Sport-Mittelschule und Nahversorger in Faistenau, ärztliche Versorgung und Gastronomie in Hof, alles schnell erreichbar. Eine Bushaltestelle mit Direktverbindung nach Salzburg liegt wenige Gehminuten entfernt (Linien 155 und 157, ca. 50 Min. bis Salzburg Hbf).
Förderung & Energieausweis:
Die Wohnbauförderung 2025 kann beantragt werden. Zusätzlich ist eine nicht rückzahlbare Einmalförderung von bis zu ca. € 70.000,00 möglich, ein echter finanzieller Vorteil für Eigennutzer. Der Energieausweis wird nach Fertigstellung ausgestellt.
Fazit:
Wer naturnah, energieeffizient und individuell wohnen möchte, findet hier die perfekte Kombination. Die Immobilie in 5324 Hintersee besticht durch ihre malerische Lage inmitten der idyllischen Salzburger Landschaft. Umgeben von atemberaubenden Bergen und ruhiger Natur bietet sie eine perfekte Balance zwischen Erholung und Erreichbarkeit. Die Nähe zu einer Bushaltestelle gewährleistet eine bequeme Anbindung an die umliegenden Orte und die Stadt Salzburg, sodass sowohl Pendler als auch Naturliebhaber auf ihre Kosten kommen. Ein Ort, der Lebensqualität verspricht! Preisbewusste profitieren zusätzlich von Salzburgs günstigstem Neubaupreis von ca. € 4.400,-qm/Edelrohbau.
Jetzt informieren, besichtigen und rechtzeitig Ihre Wunschwohnung sichern – wir freuen uns über Ihren Anruf unter 0664 1544066!
Alle bildlichen Darstellungen, inklusive der Pläne sowie alle sonstigen Ausführungen im gesamten Expose‘ samt Beilagen sind unverbindlich und freibleibend. Entscheidend sind ausschließlich die Regelungen im abzuschließenden schriftlichen Kaufvertrag.
ALLGEMEINES: Für Fragen bzw. zur Vereinbarung eines Besichtigungstermines vor Ort oder in unserem Büro in Salzburg stehen wir gerne zur Verfügung und freuen uns auch über Ihren Besuch auf unserer Website https://pe-immo.at, wo Sie laufend neue Objekte und wertvolle Informationen rund um Immobilien finden.
Wir weisen darauf hin, dass zwischen dem Vermittler und dem zu vermittelnden Dritten ein familiäres oder wirtschaftliches Naheverhältnis besteht.
Der Vermittler ist als Doppelmakler tätig.
Die kleine Gemeinde Hintersee liegt im östlichen Flachgau ca. 34km (40 Autominuten) von Salzburg entfernt. Der Hintersee befindet sich fußläufig in wenigen Minuten Entfernung und der Fuschlsee in ca. 15km Entfernung, nach Sankt Gilgen am Wolfgangsee sind es ca.16km. Die liebliche Landschaft, ein reges Vereinsleben, die Nähe zur Festspielstadt und zu den umliegenden Bergen bieten extrem hohe Lebensqualität im Sommer, als auch im Winter für Sportliche und weniger Sportliche: Wandern, Schwimmen, Tennis, Skifahren, Skitouren in der Osternhorngruppe oder am Zwölferhörndl, Langlaufen, Snowtube, Rodeln ist quasi vor der Haustüre möglich.
Nahversorger findet man in den Nachbargemeinden Faistenau/Hof: Supermarkt, Gasthöfe, ärztliche Versorgung, Kindergarten (Hintersee), Neue Sport-Mittelschule (Faistenau), Bibliothek befinden sich in unmittelbarer Nähe. Hintersee ist öffentlich mit dem Bus ab Salzburg Hauptbahnhof mit den Linien 155 und 157 in ca. 50 Min. erreichbar.
| Angebots-ID: | 464784771 |
| Verfügbar ab: | 31.01.2026 |
| Kaufpreis: | 314.000,00 EUR |
| Zimmer: | 3 |
| Badezimmer: | 1 |
| Wohnfläche: | 72,00 m² |
| Etage: | EG |
| Baujahr: | 2025 |
| Objektzustand: | Erstbezug |
| Heizungsart: | Etagenheizung |
| Befeuerungsart: | Solar, Luft-Wärmepumpe |
| Art des Energieausweises: | Bedarf |
| Zusatzinformation zur Lage: | Faistenau, Hintersee |
| Käuferprovision: | 3% des Kaufpreises zzgl. 20% USt. |
| Anzahl Außenstellplätze: | 2 |
| Balkon-/Terrassenfläche: | 9 m² |
| Stellplätze: | 2 |
| Separate WCs: | 1 |
| Terrassen: | 1 |
| Gartenfläche: | 100,07 m² |
| Kellerfläche: | 10 m² |
| Bodenbelag: | Estrich |
| Badausstattung: | Badewanne |
| Küche: | Offene Küche |
| Ausrichtung Balkon/Terrasse: | Süd-Ost |
| Dachform: | Satteldach |
| Bauweise: | Holz |
| Ausbaustufe: | schlüsselfertig mit Bodenplatte |
| Energietyp: | Niedrigenergiehaus |
| HWB-Wert: | 26,50 kWh/(m²*a) |
| HWB-Klasse: | B |
| fGEE-Wert: | 0,52 |
| fGEE-Klasse: | A++ |
5324 Hintersee
Österreich














