NÄHE HOCHLEITHEN/MISTELBACH: Großes Wohnhaus mit großzügigem Garten und freier Baufläche für Individualisten/Bauträger
WOCHENENDREFUGIUM ODER DER TRAUM VOM AUTARKEN LEBEN AM LAND…
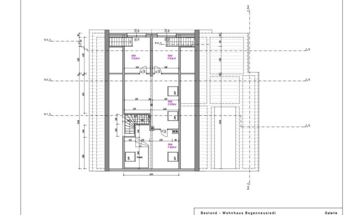
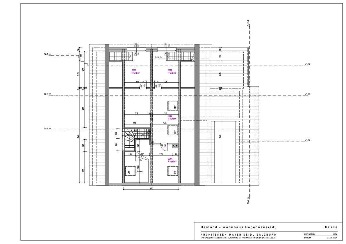
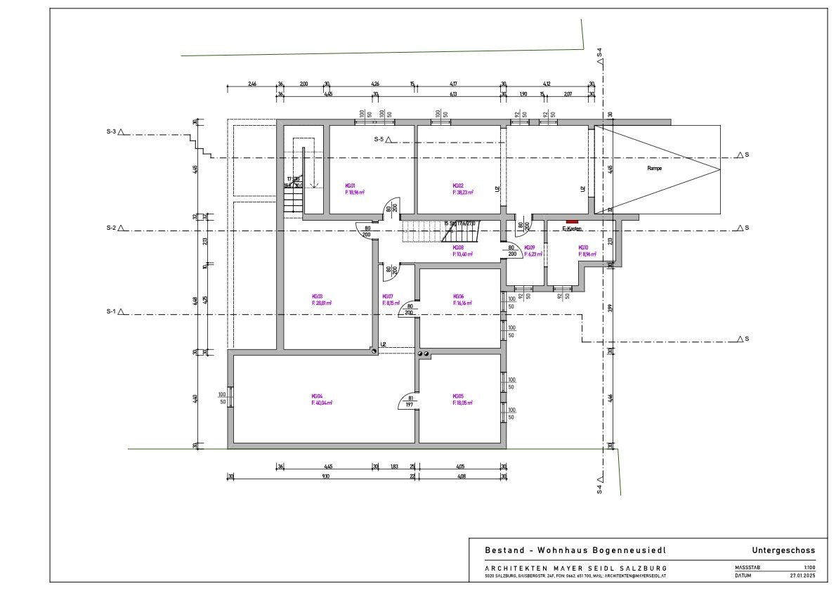
… beides ist hier möglich. Das ca. 1980 errichtete Wohnhaus erstreckt sich über 4 Geschosse – Halbhochkeller, Erdgeschoß, Obergeschoß und Dachgalerie.
Das Erdgeschoss teilt sich in 2 Wohnungen mit ca. 80 m2 bzw. 95 m2 auf, die über einen gemeinsamen Stiegenaufgang und Innenhof erschlossen werden. Das Obergeschoß mit einer Fläche von ca. 215 m2 und einer Dachgalerie von 90 m2 beinhaltet einen überaus großen Wohnbereich von ca. 95 m2. Das über das angrenzende Terrain herausstehende Kellergeschoß beinhaltet eine großzügige Garage und weitere Räumlichkeiten im Ausmaß von ca. 150 m2. Das abgewohnte und sanierungsbedürftige Haus ist bereits thermisch saniert ( Wärmedämmung), wird aber noch mit einem Ölkessel beheizt – könnte aber mit Erdgas oder Wärmepumpe betrieben werden ( Fußbodenheizung).
Das Haus verfügt auch über einen eigenen Brunnen, der für Gartenwasser geeignet wäre.
Der aktuelle Bebauungsplan lässt eine weitere sinnvolle Bebauung von ca. 200 m2 zu.
Das Haus könnte in verschiedenen Varianten saniert und ausgebaut werden:
Variante 1: Das Haus wird zu einer großzügigen Villa mit vielen Nutzungsmöglichkeiten ausgebaut
Variante 2 : Das Haus würde sich auch als Doppelwohnhaus verwirklichen lassen
Variante 3: Das Haus lässt sich auch in 5 Wohneinheiten aufteilen jeweils zwischen 80 -100 m2 – je nach Lage mit Terrasse oder Balkon
Für Fragen bzw. zur Vereinbarung eines Besichtigungstermines stehen wir gerne unter 0664 1544066 zur Verfügung! Wir freuen uns über Ihre Anfrage mit Angabe Ihres Namens, Ihrer Adresse, Telefonnummer und E-Mail-Adresse!
ALLGEMEINES:
Wir freuen uns auch über Ihren Besuch auf unserer Website https://pe-immo.at, wo Sie laufend neue Objekte und wertvolle Informationen rund um Immobilien finden.
UNSER SERVICE FÜR SIE: Gerne beraten wir Sie unverbindlich in allen Vermietungs-, Verkaufs- oder Bewertungs- und Verwertungsfragen zu Ihrer Immobilie und freuen uns über Ihre Weiterempfehlung.
Wir weisen darauf hin, dass zwischen dem Vermittler und dem zu vermittelnden Dritten ein familiäres oder wirtschaftliches Naheverhältnis besteht.
Der Vermittler ist als Doppelmakler tätig.
Dieses große Wohnhaus mit großzügigem Garten und freier Baufläche für Individualisten/Bauträger befindet sich in Bogenneusiedl, einem kleinen Ort unweit der A5 Nordautobahn – unweit von Wolkersdorf, Wolfpassing, Hochleithen – die Wiener Innenstadt ist mit dem PKW in 45 Min (44 km bis zum Karlsplatz) erreichbar.
Bogenneusiedl ist eine Ortschaft und eine Katastralgemeinde der Gemeinde Hochleithen im Bezirk Mistelbach in Niederösterreich. Das Dorf liegt im Weinviertler Hügelland zwischen Gaweinstal und Niederkreuzstetten an den Landesstraßen L3030 und L3100.
| Angebots-ID: | 464784825 |
| Verfügbar ab: | Nach Vereinbarung |
| Kaufpreis: | 790.000,00 EUR |
| Badezimmer: | 4 |
| Wohnfläche: | 520,00 m² |
| Grundstücksfläche: | 2.425,00 m² |
| Nutzfläche: | 520,00 m² |
| Etagen: | 3 |
| Baujahr: | 1980 |
| Letzte Renovierung: | 2010 |
| Objektzustand: | renovierungsbedürftig |
| Heizungsart: | Ofenheizung, Zentralheizung, Fußbodenheizung |
| Befeuerungsart: | Öl, Holz-Hackschnitzel |
| Zusatzinformation zur Lage: | Wolkersdorf, Hochleithen, Mistelbach |
| Käuferprovision: | 3% des Kaufpreises zzgl. 20% USt. |
| Anzahl Garagenstellplätze: | 1 |
| Separate WCs: | 2 |
| Balkone: | 1 |
| Terrassen: | 1 |
| Gartenfläche: | 1.400 m² |
| Kellerfläche: | 190 m² |
| Bodenbelag: | Fliesen |
| Badausstattung: | Dusche, Badewanne, Fenster |
| Ausrichtung Balkon/Terrasse: | Süd |
| Dachform: | Satteldach |
| Bauweise: | Holz |
2125 Bogenneusiedl
Österreich














