RUHIG & ZENTRAL!
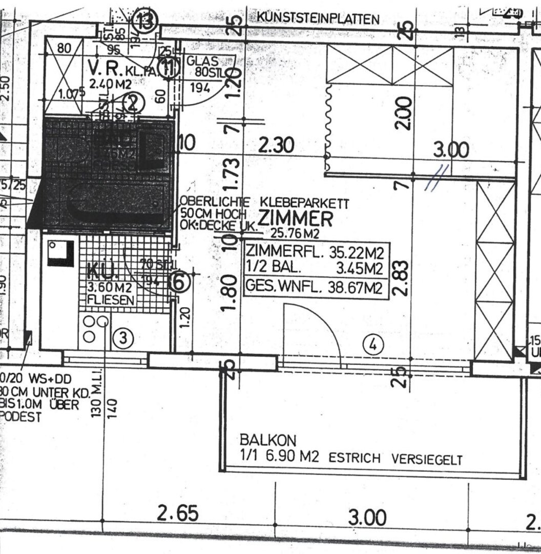
Die freundliche Licht durchflutete 1-Zimmer-Balkon-Wohnung befindet sich im 1. OG eines Wohnhauses aus den 80-ern mitten im Nonntal. Vom kleinen Vorraum geht es sowohl in das Duschbad als auch in den gemütlichen Wohn-/Schlafbereich mit herrlichem Relax-Balkon. Ergänzt wird das Raumangebot durch die kleine Küche, die sich in einem extra Raum befindet. In dieser herrlichen Wohlfühlwohnung herrscht eine freundliche Athmosphäre von morgens bis abends.
Ausstattung: Echtholz-Parkettböden, Einbauküche, Bad mit Dusche und Waschmaschinenanschluss.
Die Wohnung wird ab sofort in befristeter Hauptmiete für 3 Jahre vermietet. Gesamtmiete ink. Ust, BK/HK-àconto/TG-Platz € 899,04 zzgl. Strom nach Verbrauch.
ALLGEMEINES:
Wir freuen uns auch über Ihren Besuch auf unserer Website https://pe-immo.at, wo Sie laufend neue Objekte und wertvolle Informationen rund um Immobilien finden.
UNSER SERVICE FÜR SIE: Gerne beraten wir Sie unverbindlich in allen Vermietungs-, Verkaufs- oder Bewertungs- und Verwertungsfragen zu Ihrer Immobilie und freuen uns über Ihre Weiterempfehlung.
Wir weisen darauf hin, dass zwischen dem Vermittler und dem zu vermittelnden Dritten ein familiäres oder wirtschaftliches Naheverhältnis besteht.
Der Immobilienmakler erklärt, dass er – entgegen dem in der Immobilienwirtschaft üblichen Geschäftsgebrauch des Doppelmaklers – einseitig nur für den Vermieter tätig ist.
Optimale Stadtlage mitten im sympathischen Statteil Nonntal, unter der Festung in Altstadt- und Uni-Nähe. Nahversorger, Bio-Markt am Kajetanerplatz, Grünanlagen in der Hellbrunner Allee und die Altstadt sind sowohl zu Fuß als auch mit dem Fahrrad schnell erreichbar. Mit der Buslinie 5 ist man in wenigen Minuten am Hauptbahnhof und die Auffahrt Autobahn-Nord/Süd ist ebenso rasch erreichbar.
| Angebots-ID: | 464784822 |
| Verfügbar ab: | 01.01.2026 |
| Gesamtmiete: | 899,04 EUR |
| Kaution: | 3 Bruttomonatsmieten |
| Zimmer: | 1 |
| Badezimmer: | 1 |
| Wohnfläche: | 35,00 m² |
| Etage: | 1 |
| Letzte Renovierung: | 2012 |
| Objektzustand: | gepflegt |
| Heizungsart: | Zentralheizung |
| Art des Energieausweises: | Bedarf |
| Zusatzinformation zur Lage: | Nonntaler Hauptstraße, Altstadt, Hellbrunner Allee |
| Gesamtkosten: | 899,04 € |
| Mieterprovision: | |
| Anzahl Garagenstellplätze: | 1 |
| Zusatzinfos zu den Preisen: | Mietzins Wohnung + Tiefgaragenplatz inkl. UST/BK-/HK-àconto € 899,04 zzgl. Strom nach Verbrauch |
| Balkon-/Terrassenfläche: | 6,9 m² |
| Separate WCs: | 1 |
| Balkone: | 1 |
| Bodenbelag: | Fliesen, Parkett |
| Badausstattung: | Badewanne |
| Ausrichtung Balkon/Terrasse: | Süd-West |
| Stellplatzart: | Tiefgarage |
| Dachform: | Satteldach |
| Bauweise: | massiv |
| HWB-Wert: | 92,60 kWh/(m²*a) |
| HWB-Klasse: | D |
| fGEE-Wert: | 1,45 |
| fGEE-Klasse: | C |
| Immobilie ist verfügbar ab: | 01.01.2026 |
| maximale Mietdauer (Jahre): | 3 |
5020 Salzburg
Österreich







