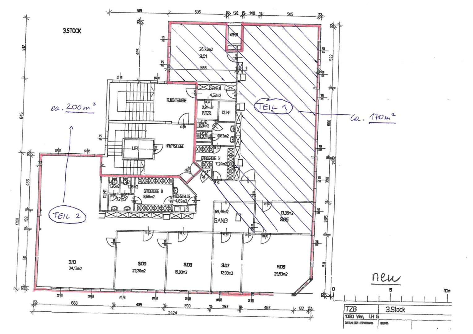
THE MALL/BEST ADRESS: NEUSTART AUF CA. 200qm BÜROFLÄCHE / TEIL II
Das Büro verfügt insgesamt ca. 374qm und befindet sich im 3.Obergeschoss.
Teil II besteht aus einem teilbaren Großraumbüro sowie 4 weiteren Büroräumen und notwendigen Nebenräumlichkeiten wie Sanitärbereich, Lager, Serverraum, Teeküche – siehe Plan. Der großzügige Eingangsbereich wird von beiden Büromietern benutzt und kann individuell gestaltet werden.
Alle Räume außer den Räumen 3.06, 3.07 wurden neu ausgemalt.
FACTS:
– Blaue Spannteppichböden
– Fenster zum Öffnen mit schönen Aussichten auf die umliegenden historischen Gebäude
– IT-Verkabelung/Serverraum
– Teeküche mit Geschirrspüler
– Getrennte Sanitärbereiche
– Zentralheizung
– Klimaanlage
– Lift
Schriftliche Anfragen bitte mit Angabe Ihres Namens, Ihrer Adresse, Telefonnummer und E-Mail-Adresse! Bei Interesse oder weiteren Fragen melden Sie sich gerne direkt bei uns unter +43 664 1544066. Wir freuen uns Ihnen die schöne Bürofläche zeigen zu dürfen!
ALLGEMEINES:
Wir freuen uns auch über Ihren Besuch auf unserer Website https://pe-immo.at, wo Sie laufend neue Objekte und wertvolle Informationen rund um Immobilien finden.
UNSER SERVICE FÜR SIE: Gerne beraten wir Sie unverbindlich in allen Vermietungs-, Verkaufs- oder Bewertungs- und Verwertungsfragen zu Ihrer Immobilie und freuen uns über Ihre Weiterempfehlung.
Wir weisen darauf hin, dass zwischen dem Vermittler und dem zu vermittelnden Dritten ein familiäres oder wirtschaftliches Naheverhältnis besteht.
Attraktive, urbane Lage in unmittelbarer Nähe zum Rochusmarkt. Der Ausgang der U3/U4 Station Landstrasse sowie der Flughafen-Shuttle CAT befinden sich nur 2 Minuten Gehweg vom Gebäude entfernt. Direkt neben dem Finanzamt und neben dem Bezirksgericht Innere Stadt Wien, fußläufig zum 1. Bezirk. Durch die Nähe zu Wien Mitte ist eine perfekte öffentliche Verkehrsanbindung und eine ausgezeichnete Nahversorgung und Infrastruktur mit zahlreichen Restaurants, Cafés, Geschäften und dem Rochusmarkt gegeben.
Öffentliche Verkehrsanbindung:
U-Bahn: U3, U4 Wien Mitte
Bus: 74 A
Straßenbahn: O
Flughafen-Shuttle CAT
| Angebots-ID: | 464784850 |
| Verfügbar ab: | Nach Vereinbarung |
| Gesamtmiete: | 12,12 EUR |
| Kaution: | 3 Bruttomonatsmieten |
| Zimmer: | 4 |
| Nutzfläche: | 200,00 m² |
| Etage: | 3 |
| Etagen: | 8 |
| Baujahr: | 1960 |
| Heizungsart: | Zentralheizung |
| Befeuerungsart: | Fernwärme |
| Zusatzinformation zur Lage: | Wien Mitte, Stadtpark |
| Netto-Kaltmiete pro m²: | 12,12 € |
| Mieterprovision: | 3 Bruttomonatsmieten zzgl. 20% USt. |
| Zusatzinfos zu den Preisen: | BK inkl. HK-àconto. |
| Separate WCs: | 2 |
| Bodenbelag: | Fliesen, Teppich |
| Dachform: | Flachdach |
| Bauweise: | Holz |
| Erschließung: | teilerschlossen |
1030 Wien
Österreich







