TOPLAGE ZWISCHEN PALAIS LIECHTENSTEIN/WÄHRINGER PARK: Cooles Loft/Studio/Atelier/Galerie mit Terrasse/Garten in Ruhelage
EXTRAVAGANT . KREATIV . GROSSZÜGIG…
… Attribute die beim Betreten des Innenhofes und des Lofts – einer ehemaligen 2004 komplett ausgebauten und sanierten aus zwei Trakten bestehenden ehemaligen Werkstatt – auf den ersten Blick beeindrucken.
Begleiten Sie uns auf einer Entdeckungstour durch diese außergewöhnliche Liegenschaft:
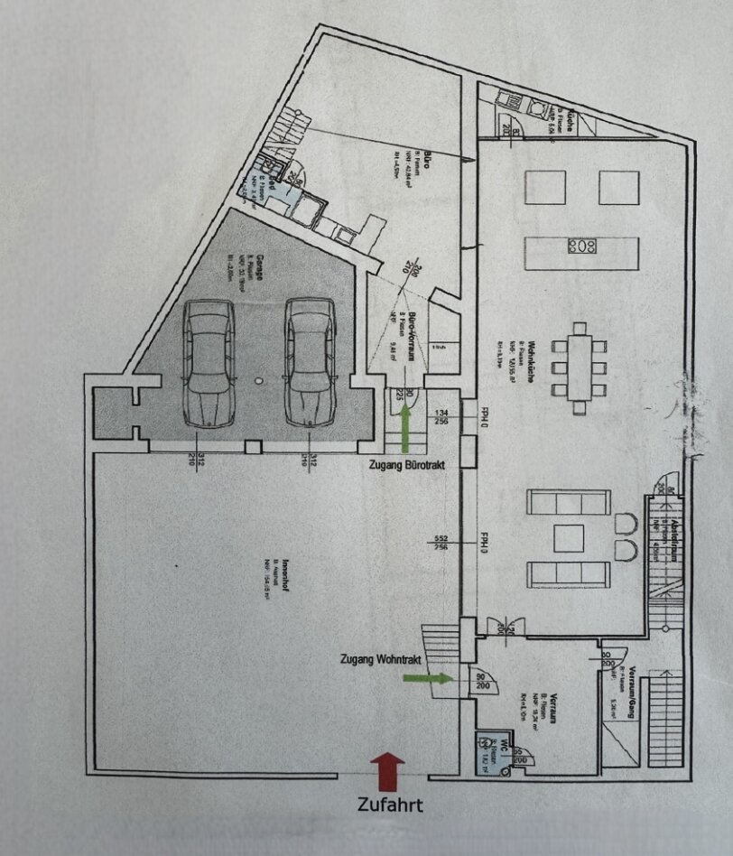
Über das sich mit der Fernbedienung automatisch öffnende Haustor und über die Hauseinfahrt des gepflegten Gründerzeithauses fährt oder geht man in den großen, ruhigen Innenhof. Hier befindet sich der Eingang zum rechten Trakt – dem Hauptgebäude sowie eine praktische, verflieste Doppel-Garage. Das Hauptgebäude gliedert sich ebenerdig in einen ca. 120qm großen Büro-/Ausstellungsbereich mit offener Designerküche mit modernen Geräten und beeindruckt mit einer Gewölbedecke, Solnhofener Natursteinfliesen und einer großzügigen Fensterfront. Dieser Bereich eignet sich hervorragend für viele Anlässe. Hinter der Designerküche ergänzt eine Vorbereitungsküche sowie Nebenräumlichkeiten wie Vorraum, Garderobe und Toiletten das Raumangebot.
Unter diesem Bereich – im Souterrain/Untergeschoß – befinden sich drei weitere beheizte Räume mit ca. 130qm, ebenso ausgestattet mit Toilette und Tee-Küche, die sich für viele Zwecke eignen – vom Weinkeller, Home-Kino, Ausstellungsfläche, Werkstatt bis hin zum Party-, Technikraum.
Das Obergeschoß dient als Rückzugsort: Ein gemütliches Wohnzimmer, eine kompakte Küche, der Masterbedrom mit ensuite-Bad, einer Ankleide und kleiner privater Frühstücksterrasse, ein separater Gäste-/Kinderbereich mit Bad und WC sorgen für entspannte Stunden.
Der linke Trakt mit eigenem Eingang erstreckt sich auf ca.100qm über 2 Etagen: Der Licht durchflutete Atelierbereich mit einer Raumhöhe von ca. 4,50m, das darüberliegende praktische Galerie-Büro, eine Teeküche sowie ein kleines Bad mit Zugang zum Balkon und Aufgang in den Dachgarten – das Paradies mitten in der Stadt. Hier lässt es sich herrlich relaxen, feiern oder einfach nur den Gedanken freien Lauf lassen.
Wir freuen uns dieses außergewöhnliche Liegenschaft persönlich präsentieren zu dürfen!
Würden Sie gerne noch mehr über dieses spannende Objekt erfahren? Für Fragen sowie zur Vereinbarung eines Besichtigungstermines steht Ihnen Frau Mag. Gabriela Paumgartner unter +43 664 1544066 zu den Bürozeiten zur Verfügung oder Sie senden uns ein Anfrage-Mail an office@pe-immo.at.
Über Ihren Besuch auf unserer Homepage //pe-immo.at freuen wir uns sehr – hier finden Sie immer interessante Objekte und wertvolle Immobilien-Tipps aus unserer Rechtsabteilung.
Wir weisen darauf hin, dass zwischen dem Vermittler und dem zu vermittelnden Dritten ein familiäres oder wirtschaftliches Naheverhältnis besteht.
Besser geht es nicht: Perfekte Anbindung an öffentliche Verkehrsmittel durch die U6, Straßenbahnlinien 37 und 38 sowie die Buslinien 35A und 37A. Sowohl mit Bus oder U-Bahn erreicht man das Stadtzentrum in ca. 10Min. Mit dem PKW erreicht man die Autobahnauffahrten A1(ca. 20Min.) und A22 ebenso in kurzer Zeit. Der Flughafen Wien Schwechat ist sowohl öffentlich als auch mit dem eigenen PKW in ca. 30Min. erreichbar. In der direkten Umgebung findet man fußläufig neben Nahversorgern wie Supermärkten zahlreiche Restaurants, Ärzte, Schulen und Kindergärten. Das Lycee Francais befindet sich in der Liechtensteinstraße 37A – ca. 15Min. Fußweg.
| Angebots-ID: | 464784879 |
| Verfügbar ab: | Nach Vereinbarung |
| Kaufpreis: | 2.890.000,00 EUR |
| Zimmer: | 5 |
| Badezimmer: | 3 |
| Wohnfläche: | 382,00 m² |
| Nutzfläche: | 510,00 m² |
| Etagen: | 3 |
| Baujahr: | 1900 |
| Letzte Renovierung: | 2019 |
| Objektzustand: | vollsaniert |
| Heizungsart: | Fußbodenheizung |
| Befeuerungsart: | Gas |
| Art des Energieausweises: | Bedarf |
| Zusatzinformation zur Lage: | Währinger Park, Innenstadt |
| Käuferprovision: | 3% des Kaufpreises zzgl. 20% USt. |
| Anzahl Garagenstellplätze: | 2 |
| Zusatzinfos zu den Preisen: | BK € 434,30/Monat, Gas, Strom nach Verbrauch. Für Hausreinigung € 600,00/1xjährlich. |
| Balkon-/Terrassenfläche: | 21 m² |
| Bürofläche: | 100 m² |
| Separate WCs: | 5 |
| Balkone: | 1 |
| Terrassen: | 1 |
| Gartenfläche: | 102 m² |
| Kellerfläche: | 133 m² |
| Bodenbelag: | Fliesen, Stein, Parkett |
| Badausstattung: | Dusche, Badewanne, Fenster |
| Küche: | Offene Küche |
| Dachform: | Flachdach |
| Bauweise: | Holz |
| HWB-Wert: | 223 kWh/(m²*a) |
| HWB-Klasse: | F |
1090 Wien
Österreich























