GANZ OBEN…
… in einem 2006 ausgebauten Dachboden eines schönen Zinshauses nahe des Kutschkermarktes befindet sich die großzügige, moderne Dachgeschoßwohnung mit Terrasse und Blick über Währing.
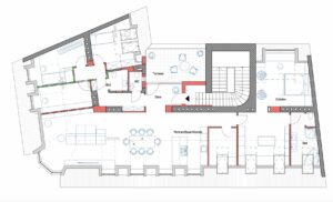
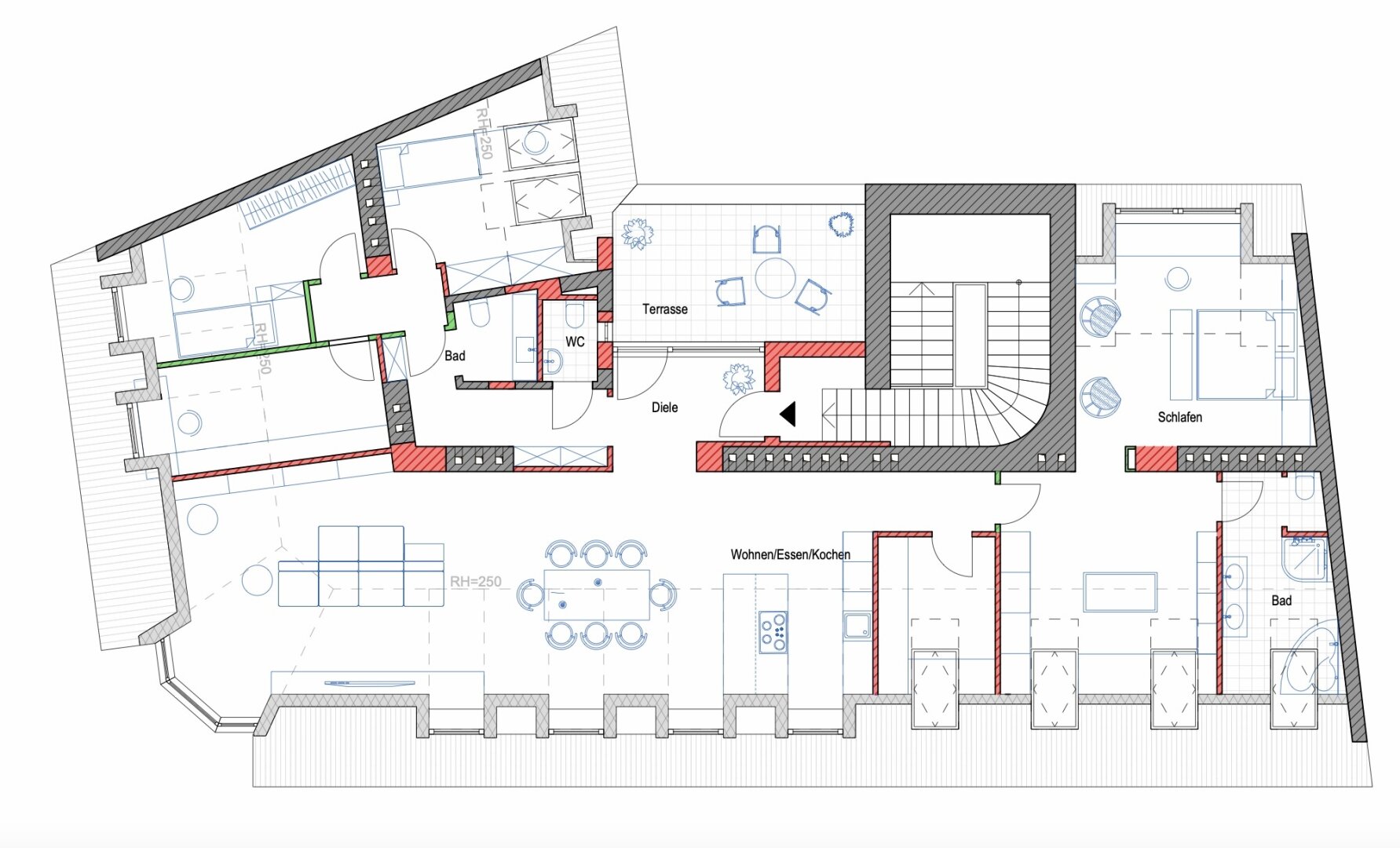
Über den Lift bis zum 3. OG und über eine Treppe in das DG erreicht man den Wohnungseingang mit geräumigem Vorzimmer und Garderobe. Hier geht es zur rechten gleich auf die schöne Sonnenterrasse, wo man herrlich Frühstücken, Mittagessen oder abends ein Glas Wein genießen kann. Zur linken betritt man das große Wohn/Esszimmer (ca. 66,50qm) mit Platz für eine offene Küche mit Insel (alle Anschlüsse sind vorhanden) und den einladenden Esstisch – im Erkerbereich lässt es sich herrlich relaxen. Zur linken des Wohnbereiches erreicht man den „Elternbereich“ – ein größeres und ein kleineres Zimmer, ein schönes Bad mit Wanne, Dusche, Doppelwaschbecken, WC und Fenster sowie einen praktischen Wirtschaftsraum mit Waschmaschinen-Anschluss. Von der Garderobe geht es direkt in einen weiteren Privatbereich der Wohnung mit 3 Zimmern, einem kleinen Duschbad, Gäste-WC.
Achtung: Der Original-Plan hat einige Abweichungen zum Ist-Zustand. Des weiteren haben wir 2 schöne Planvarianten entwickelt – entweder für eine Familie mit Kindern oder für ein Paar, welches großzügig wohnen möchte.
Ausstattung: Parkettböden, 2 Bäder mit Wanne/Dusche, Abstellraum mit Waschmaschinen-Anschluss, Gas-Zentralheizung, Lift, Kellerabteil, Garagenstellplatz in der hauseigenen Garage (Kaufpreis € 40.000,00, BK € 50,56)
BK-/Lift-àconto/Rücklage/10%Ust: € 655,83. Aktueller Rücklagenstand: ca. € 95.000,00
Wir freuen uns Ihnen diese schöne Wohnung präsentieren zu dürfen und stehen für weitere Fragen bzw. zur Vereinbarung von Besichtigungsterminen unter der Telefonnummer +43 664 1544066 zur Verfügung. Oder Sie senden uns ein Anfragemail an office@pe-immo.at. Wir freuen uns auch über Ihren Besuch auf unserer website https://pe-immo.at, wo Sie laufend neue Objekte und wertvolle Informationen rund um Immobilien finden.
UNSER SERVICE FÜR SIE: Gerne beraten wir Sie unverbindlich in allen Vermietungs-, Verkaufs- oder Bewertungs- und Verwertungsfragen zu Ihrer Immobilie.
Wir weisen darauf hin, dass zwischen dem Vermittler und dem zu vermittelnden Dritten ein familiäres oder wirtschaftliches Naheverhältnis besteht.
Der Vermittler ist als Doppelmakler tätig.
Besser geht es nicht: Für die Wohnung spricht die Erreichbarkeit der Innenstadt ohne Auto (ca. 20 Min. bis zum Schottentor) sowie Erholungsmöglichkeiten zB im nahegelegenen Währinger Park (mit Familien-Schwimmbad) oder dem wunderschönen Türkenschanzpark.
Perfekte Infrastruktur in der näheren Umgebung (U6 Währinger Straße – Volksoper, Linien 40, 41), Nahversorger, gastronomisches Angebot, Kutschkermarkt, Schulen, Grünanlagen. Die Innenstadt ist mit dem Auto in ca. 10 Minuten, der Westbahnhof mit dem Auto in ca. 15 Minuten zu erreichen. Parkpickerl für Hauptwohnsitz möglich.
| Angebots-ID: | 464784868 |
| Verfügbar ab: | Nach Vereinbarung |
| Kaufpreis: | 1.490.000,00 EUR |
| Zimmer: | 5 |
| Badezimmer: | 2 |
| Wohnfläche: | 186,00 m² |
| Baujahr: | 1890 |
| Letzte Renovierung: | 2006 |
| Objektzustand: | renoviert |
| Heizungsart: | Etagenheizung |
| Befeuerungsart: | Gas |
| Art des Energieausweises: | Bedarf |
| Zusatzinformation zur Lage: | Kutschkermarkt, Türkenschanzpark |
| Käuferprovision: | 3% des Kaufpreises zzgl. 20% USt. |
| Anzahl Garagenstellplätze: | 1 |
| Zusatzinfos zu den Preisen: | BK- und Aufzugs-à-conto, 10%Ust € 445,42 zzgl. Rücklage € 210,41 Gesamt € 655,83 |
| Balkon-/Terrassenfläche: | 14 m² |
| Separate WCs: | 2 |
| Terrassen: | 1 |
| Bodenbelag: | Fliesen, Parkett |
| Badausstattung: | Dusche, Badewanne, Fenster |
| Küche: | Offene Küche |
| HWB-Wert: | 94,24 kWh/(m²*a) |
| HWB-Klasse: | C |
1180 Wien
Österreich






















